Villa a schiera in vendita

Foggia, Via Antonio Gramsci - Cep
€ 365.000
6 locali 6 locali
220 Mq 220 Mq
3 bagni 3 bagni

Villa a schiera in vendita

Foggia, Via Antonio Gramsci - Cep

Descrizione annuncio

VIA ANTONIO GRAMSCI - In zona ben servita , con ampi spazi verdi , disponiamo di villetta a schiera su più livelli.

La soluzione è cosi disposta:

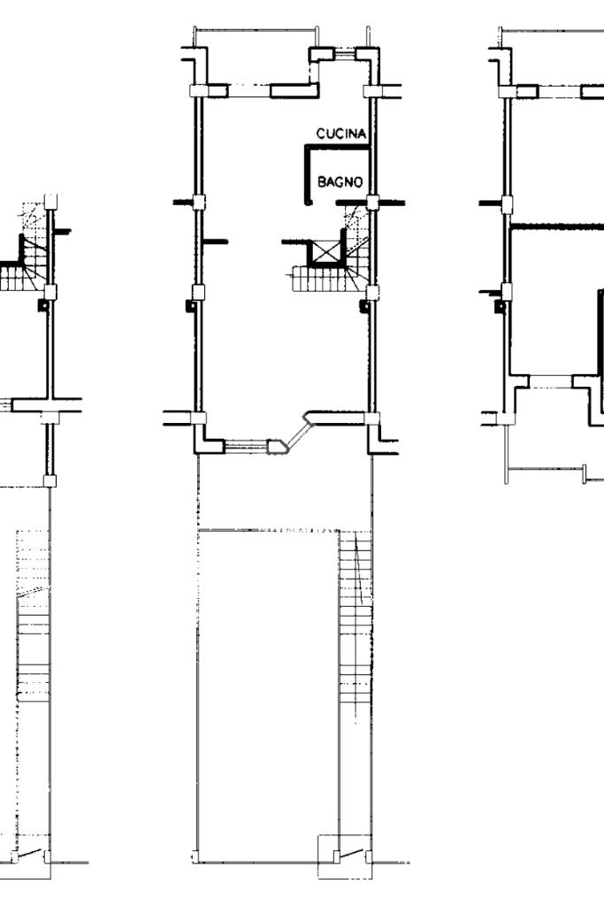
- Piano strada: Ingresso da giardino di circa 80 mq in parte piantumato e in parte piastrellato, soggiorno a vista con angolo cottura, camera, bagno e altro ingresso dal retro dove sono sitati i posti auto;

Scalinata interna che collega i vari livelli;

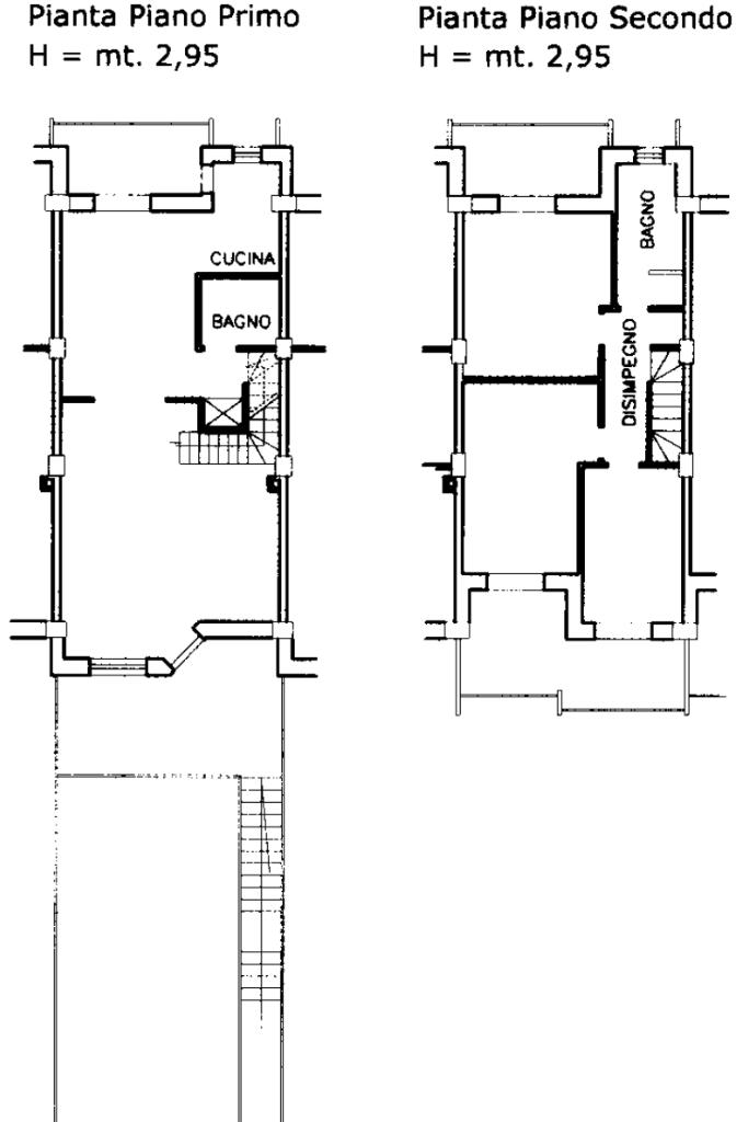
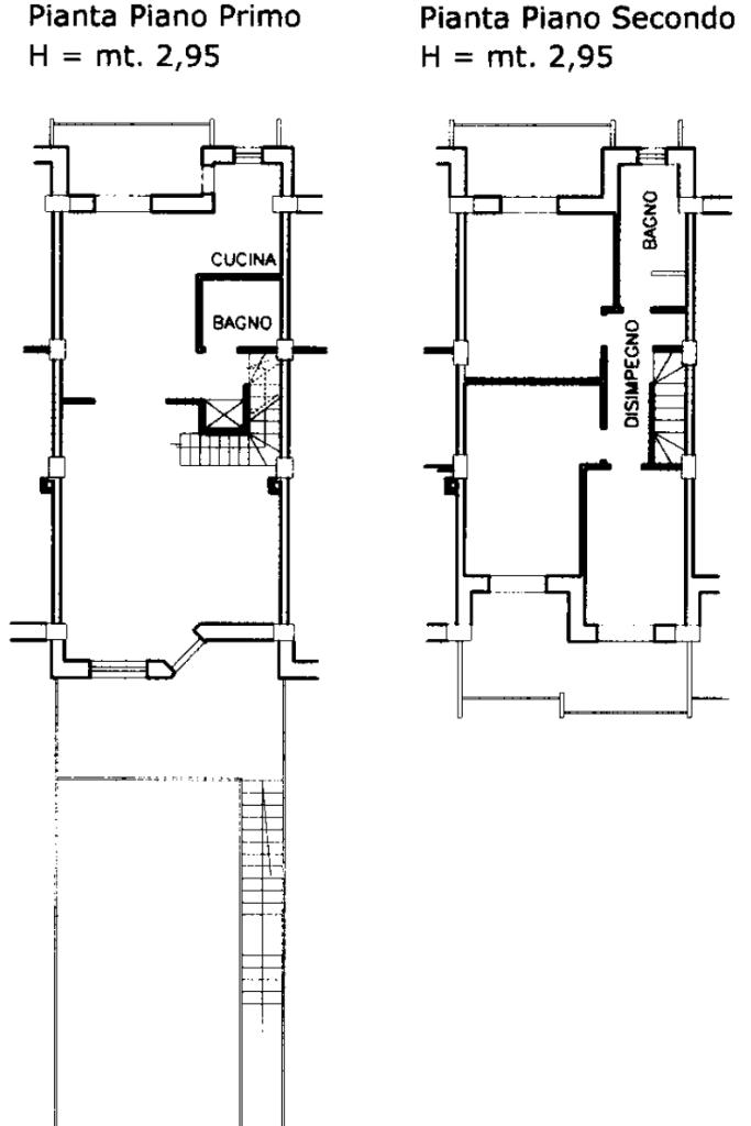
- Primo piano: soggiorno, con altro ingresso da scala esterna che immette direttamente nel giardino, sala da pranzo con cucinino, bagno e ripostiglio a muro;

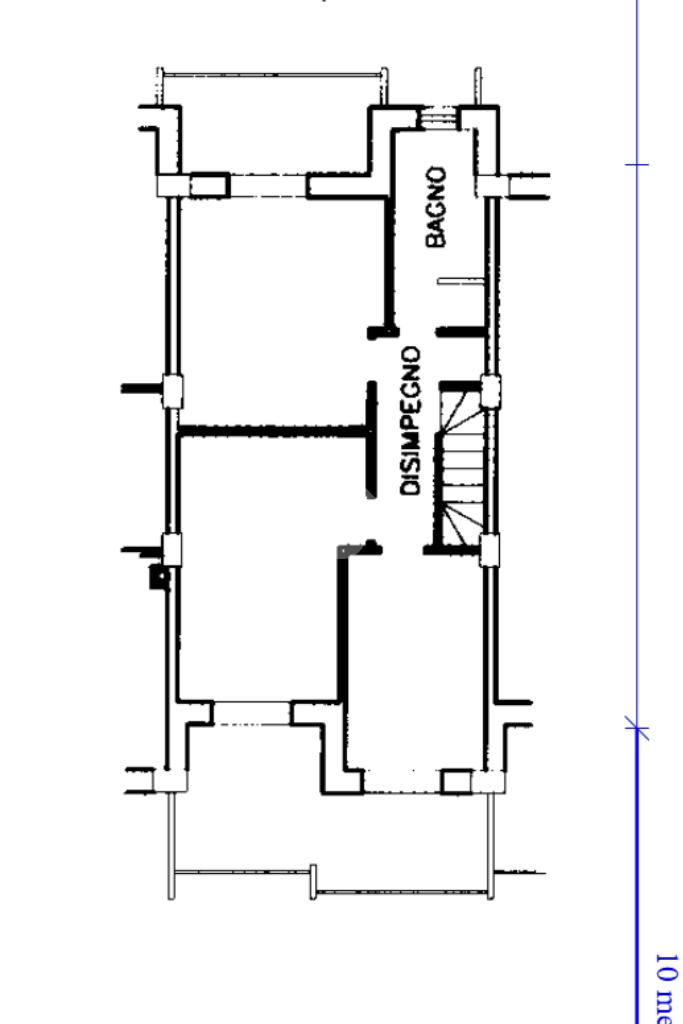
- Secondo livello: camera da letto , due camerette e bagno;

- Sottotetto mansardato di circa 60 mq.

L' immobile si presenta in ottimo stato generale con pavimentazione in monocottura al piano strada e parquet ai piani superiori, infissi in legno con doppio vetro,tapparelle elettriche, inferriate e zanzariere, porte in legno bianche, alcune delle quali a scrigno, porta d'ingresso blindata e impianto di vieosorveglianza con telecamere esterne. Impianto e idrico ed elettrico in ottimo stato.

Completano la soluzione 2 posti auto.

La villetta offre la possibilità di realizzare due unità abitative indipendenti, grazie al triplo ingresso e alla doppia esposizione.

Seguici su Facebook cliccando 'mi piace' sulla pagina Gruppo Tecnocasa (Foggia Macchia Gialla) o contattaci attraverso il nostro canale Whatsapp al numero 0881.070700 per avere maggiori informazioni sui nostri immobili.
Scarica gratuitamente anche l'App Tecnocasa sul tuo smartphone per essere sempre aggiornato sulle nostre proposte di vendita e locazione.

Inoltre, tramite la nostra agenzia hai la possibilità, previo appuntamento, di incontrare un Collaboratore di Kiron Partner SpA, la società di mediazione creditizia del Gruppo Tecnocasa, per effettuare una consulenza reddituale e poter richiedere il mutuo adatto alle tue esigenze.

LA CONSULENZA E' GRATUITA.

Mostra tutto

Nelle vicinanze

Trasporto pubblico Trasporto pubblico
stazione di Foggia
stazione di Foggia
2,5 Km
Trasporto pubblico
370 m
Via Mons. Farina
Via Mons. Farina
910 m
Ricariche auto elettriche Ricariche auto elettriche
Enel PAN Foggia Viale degli Aviatori
2,2 Km
Concessionario Nissan Renauto S.P.A.
2,7 Km
Scuole Scuole
Trinity English School
230 m
Istituto Tecnico Industriale Statale "L. da Vinci"
470 m
Istituto Smaldone
620 m
Scuola Media "N. Zingarelli"
780 m
Asilo nido "Scoletta Gaia"
790 m
Farmacia Farmacia
Farmacia Tartaglia
600 m
Farmacia Santa Rita
1,0 Km
Farmacia
1,1 Km
Farmacia San Pio
1,2 Km
Farmacia Michelangelo
1,4 Km
Ospedali Ospedali
ASL FG
1,3 Km
Casa di Cura "Maria Grazia Barone"
2,3 Km
Clinica S. Francesco
2,3 Km
Clinica Colonnello D'Avanzo
2,3 Km
Supermercati Supermercati
Lidl
300 m
Supermercati
1,1 Km
Supermercati DOC
1,2 Km
Punto Market
1,3 Km
Despar
1,4 Km
Negozi Negozi
Piazza Cina
490 m
Negozi
1,1 Km
La Navicella
2,1 Km
L'Antica Bottega
2,1 Km
Uli-Style
2,2 Km
Bar Bar
Wasabi Café
560 m
Zapoj
920 m
Glamour
920 m
Bar
1,0 Km
Bar Fiocco di neve
1,7 Km
Ristoranti Ristoranti
La Nuova Mangiatoia
510 m
Pizzeria Delirio
980 m
Cochet Grillee
2,0 Km
Pizza e Sfizi
2,1 Km
Pizzeria Mediterranea
2,1 Km
Mostra tutto

Caratteristiche

Rif.:
61131071
Piano:
Su più livelli di 3
Totale piani:
3
Posti auto:
2
Balconi:
4
Camere da letto:
3
Mostra tutto
Prezzo Prezzo
€ 365.000
Rata mutuo Rata mutuo
€ 1.723 / mese
Spese annue Spese annue
€ 0
Proponi il tuo prezzoProponi il tuo prezzo

Classe Energetica

F
F
F
F
F
F
F
F
F
EP globale non rinnovabile:
118.80 kW h/m² anno
EP globale rinnovabile:
79.23 kW h/m² anno
EP invernale del fabbricato:
EP estiva del fabbricato:
Anno di costruzione:
2001
Riscaldamento:
Autonomo
Tipo impianto:
A radiatori
Tipo alimentazione:
Metano

Ti interessa visionare l'immobile?

Fissa un appuntamento  Fissa un appuntamento

Richiedi informazioni

Clicca su Leggi per aprire l'informativa
* Questi campi sono obbligatori

Calcola il tuo mutuo

Semplice e senza impegno
Anticipo

( % )
Mutuo

( % )

pochi semplici passi

inserisci i tuoi dati
Questionario completato
Grazie per aver richiesto un appuntamento senza impegno con un nostro Consulente del Credito e Assicurativo.

Hai inserito correttamente tutti i dati necessari e a breve riceverai una e-mail con un link da convalidare per inviare i tuoi dati.
Affiliato
Macchia Gialla Sas
Via Padre Ardelio Della Bella, 9/11 71122 Foggia (FG)

Il nostro staff


  • Christian Foglio
    Collaboratore

  • Gina Gerardi
    Collaboratrice

  • Mariana Pizzuto
    Coordinatrice

  • Luca Stasi
    Affiliato
Via Padre Ardelio Della Bella, 9/11 71122 Foggia (FG)
Zona: Foggia-Macchia Gialla-Tribunale-Parco Dei Fiori
Mostra su mappa
Orari: Da Lunedì a Venerdì dalle ore 09.00 alle 13.00 e dalle 16.00 alle 20.30 - Sabato dalle ore 09.00 alle 13.00
Affiliato
Macchia Gialla Sas
Via Padre Ardelio Della Bella, 9/11 71122 Foggia (FG)

2025 Tecnocasa Franchising S.p.A. - P. IVA 08365160152 - Via Monte Bianco 60/A 20089 Rozzano (MI). Ogni agenzia ha un proprio titolare ed è autonoma. Privacy policy | Policy utilizzo | Cookie policy