Trilocale in vendita

Foggia, Via Domenico Patroni L1 Scala B - Tribunale
€ 169.000
3 locali 3 locali
90 Mq 90 Mq
1 bagno 1 bagno

Trilocale in vendita

Foggia, Via Domenico Patroni L1 Scala B - Tribunale

Descrizione annuncio

ZONA TRIBUNALE - VIA DOMENICO PATRONI

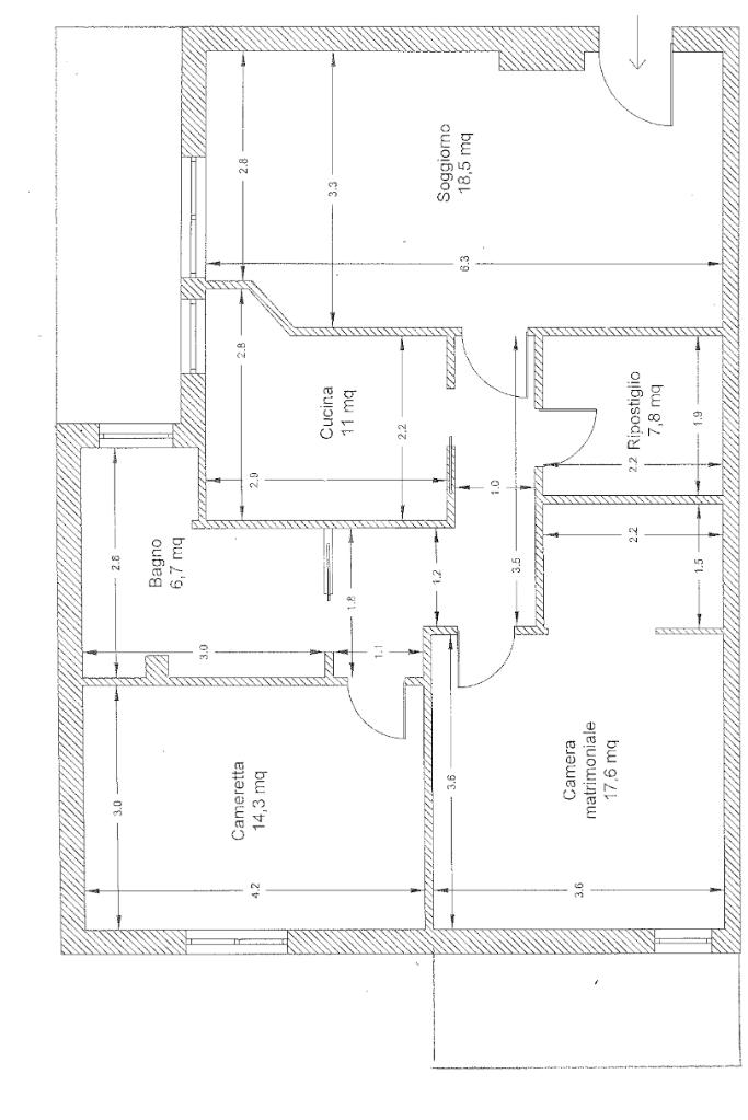
In zona ben servita ed in stabile signorile disponiamo di un appartamento di 3 VANI oltre accessori e box auto.

L'immobile si presenta in ottimo stato con pavimentazione unica in gres porcellanato, infissi in legno con doppio vetrocamera, porte interne in legno, porta d'ingresso blindata e impianto d'allarme;

Inoltre l'appartamento è così disposto: soggiorno a vista ,cucina semi abitabile, cameretta, camera da letto con cabina armadio, bagno e ripostiglio. Impianto idrico ed elettrico in ottimo stato.

Completa la soluzione box di 17 mq .

La posizione molto centrale e il piano alto caratterizzano questo immobile.

Seguici su Facebook cliccando 'mi piace' sulla pagina Gruppo Tecnocasa (Foggia Macchia Gialla) o contattaci attraverso il nostro canale Whatsapp al numero 0881.070700 per avere maggiori informazioni sui nostri immobili.
Scarica gratuitamente anche l'App Tecnocasa sul tuo smartphone per essere sempre aggiornato sulle nostre proposte di vendita e locazione.

Inoltre, tramite la nostra agenzia hai la possibilità, previo appuntamento, di incontrare un Collaboratore di Kiron Partner SpA, la società di mediazione creditizia del Gruppo Tecnocasa, per effettuare una consulenza reddituale e poter richiedere il mutuo adatto alle tue esigenze.

LA CONSULENZA E' GRATUITA.

Mostra tutto

Nelle vicinanze

Trasporto pubblico Trasporto pubblico
stazione di Foggia
stazione di Foggia
2,0 Km
Trasporto pubblico
460 m
Viale D. Vittorio
Viale D. Vittorio
1,3 Km
Ricariche auto elettriche Ricariche auto elettriche
Enel PAN Foggia Viale degli Aviatori
130 m
Concessionario Nissan Renauto S.P.A.
2,6 Km
Daunia Soccorso Foggia | EnelX
2,8 Km
Scuole Scuole
Scuole
610 m
Nicola Parisi
780 m
Istituto Comprensivo Parisi - De Sanctis
910 m
Scuola Edmondo De Amicis
1,2 Km
Scuola media statale "PIO XII"
1,3 Km
Farmacia Farmacia
Farmacia Santa Rita
410 m
Farmacia San Marco
520 m
Farmacia San Michele
720 m
Farmacia dell'Immacolata
850 m
Farmacia
1,1 Km
Ospedali Ospedali
Clinica Colonnello D'Avanzo
440 m
Clinica S. Francesco
670 m
Casa di Cura "Maria Grazia Barone"
680 m
Ospedali Riuniti di Foggia
1,9 Km
ASL FG
2,0 Km
Supermercati Supermercati
Ipercoop
390 m
Sigma
530 m
MD Discount
620 m
Alter Discount
750 m
La Prima Srl
790 m
Negozi Negozi
Negozi
1,2 Km
Uli-Style
1,3 Km
I Figli di Papà
1,3 Km
Motivi
1,4 Km
Halfon
1,4 Km
Bar Bar
Bar
360 m
Caffetteria cornetteria Simonetti
440 m
Cafes de Paris
590 m
Bar Fiocco di neve
640 m
Bar Pasticceria Catalano
1,2 Km
Ristoranti Ristoranti
Cochet Grillee
660 m
Mangia come parli
830 m
El Matador
920 m
Ambasciata Orsarese
970 m
Pizza e Sfizi
1,2 Km
Mostra tutto

Caratteristiche

Rif.:
61176111
Piano:
4 di 6 con ascensore (Piano alto)
Box:
1
Balconi:
2
Camere da letto:
1
Arredamento:
Assente
Mostra tutto
Prezzo Prezzo
€ 169.000
Rata mutuo Rata mutuo
€ 797 / mese
Spese annue Spese annue
€ 368
Proponi il tuo prezzoProponi il tuo prezzo
Immobile valutato con T·Valuta

Classe Energetica

G
G
G
G
G
G
G
G
G
EP globale non rinnovabile:
108.38 kW h/m² anno
EP globale rinnovabile:
55.22 kW h/m² anno
Anno di costruzione:
2003
Riscaldamento:
Autonomo
Tipo impianto:
A radiatori
Tipo alimentazione:
Metano

Ti interessa visionare l'immobile?

Fissa un appuntamento  Fissa un appuntamento

Richiedi informazioni

Clicca su Leggi per aprire l'informativa
* Questi campi sono obbligatori

Calcola il tuo mutuo

Semplice e senza impegno
Anticipo

( % )
Mutuo

( % )

pochi semplici passi

inserisci i tuoi dati
Questionario completato
Grazie per aver richiesto un appuntamento senza impegno con un nostro Consulente del Credito e Assicurativo.

Hai inserito correttamente tutti i dati necessari e a breve riceverai una e-mail con un link da convalidare per inviare i tuoi dati.
Affiliato
Macchia Gialla Sas
Via Padre Ardelio Della Bella, 9/11 71122 Foggia (FG)

Il nostro staff


  • Christian Foglio
    Collaboratore

  • Gina Gerardi
    Collaboratrice

  • Mariana Pizzuto
    Coordinatrice

  • Luca Stasi
    Affiliato
Via Padre Ardelio Della Bella, 9/11 71122 Foggia (FG)
Zona: Foggia-Macchia Gialla-Tribunale-Parco Dei Fiori
Mostra su mappa
Orari: Da Lunedì a Venerdì dalle ore 09.00 alle 13.00 e dalle 16.00 alle 20.30 - Sabato dalle ore 09.00 alle 13.00
Affiliato
Macchia Gialla Sas
Via Padre Ardelio Della Bella, 9/11 71122 Foggia (FG)

2026 Tecnocasa Franchising S.p.A. - P. IVA 08365160152 - Via Monte Bianco 60/A 20089 Rozzano (MI). Ogni agenzia ha un proprio titolare ed è autonoma. Privacy policy | Policy utilizzo | Cookie policy