Quadrilocale in vendita

Foggia, Viale Virgilio - Cep
€ 145.000
4 locali 4 locali
100 Mq 100 Mq
1 bagno 1 bagno

Quadrilocale in vendita

Foggia, Viale Virgilio - Cep

Descrizione annuncio

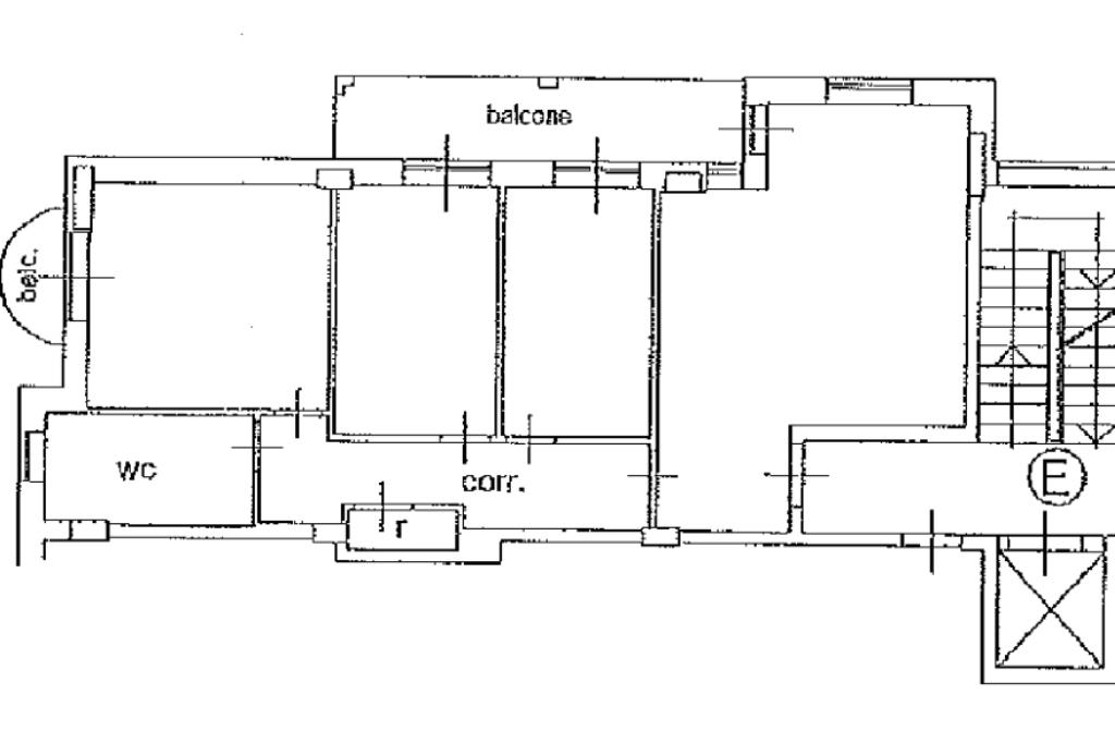
ZONA CEP - VIALE VIRGILIO

In contesto signorile realizzato da circa 10 anni disponiamo di soluzione composta da 4VANI oltre accessori ;

L'appartamento è composto da soggiorno a vista con angolo cottura, due camerette, camera matrimoniale e ripostiglio;

Si presenta in ottimo stato con pavimentazione unica in gres porcellanato, infissi in legno con vetrocamera, impianto idrico ed elettrico in ottimo stato, porte interne in legno, alcunte a scrigno altre a battente e porta d'ingresso blindata.

La presenza di due balconi e l'esposizione angolare, caratterizzano l'immobile.

Si specifica essere locata con contratto in scadenza a Febbraio 2029. Iedale anche per uso investimento.

Seguici su Facebook cliccando 'mi piace' sulla pagina Gruppo Tecnocasa (Foggia Macchia Gialla) o contattaci attraverso il nostro canale Whatsapp al numero 0881.070700 per avere maggiori informazioni sui nostri immobili.
Scarica gratuitamente anche l'App Tecnocasa sul tuo smartphone per essere sempre aggiornato sulle nostre proposte di vendita e locazione.

Inoltre, tramite la nostra agenzia hai la possibilità, previo appuntamento, di incontrare un Collaboratore di Kiron Partner SpA, la società di mediazione creditizia del Gruppo Tecnocasa, per effettuare una consulenza reddituale e poter richiedere il mutuo adatto alle tue esigenze.

LA CONSULENZA E' GRATUITA.

Mostra tutto

Nelle vicinanze

Trasporto pubblico Trasporto pubblico
Via Berlinguer
Via Berlinguer
810 m
Via Mons. Farina
Via Mons. Farina
820 m
Ricariche auto elettriche Ricariche auto elettriche
Enel PAN Foggia Viale degli Aviatori
2,6 Km
Scuole Scuole
Istituto Tecnico Industriale Statale "L. da Vinci"
610 m
Asilo nido "Scoletta Gaia"
630 m
Trinity English School
750 m
Scuola Media "N. Zingarelli"
760 m
Istituto Smaldone
820 m
Farmacia Farmacia
Farmacia
1,1 Km
Farmacia Tartaglia
1,1 Km
Farmacia Santa Rita
1,5 Km
Farmacia San Pio
1,8 Km
Farmacia San Michele
2,0 Km
Ospedali Ospedali
ASL FG
1,9 Km
Clinica S. Francesco
2,5 Km
Casa di Cura "Maria Grazia Barone"
2,8 Km
Clinica Colonnello D'Avanzo
2,8 Km
Supermercati Supermercati
Lidl
910 m
Supermercati DOC
1,1 Km
Supermercati
1,3 Km
Punto Market
1,9 Km
Despar
2,0 Km
Negozi Negozi
Negozi
1,1 Km
Piazza Cina
1,1 Km
La Navicella
2,7 Km
L'Antica Bottega
2,7 Km
Globo Foggia
2,8 Km
Bar Bar
Bar
1,0 Km
Zapoj
1,1 Km
Wasabi Café
1,1 Km
Glamour
1,5 Km
Bar Fiocco di neve
2,1 Km
Ristoranti Ristoranti
La Nuova Mangiatoia
220 m
Pizzeria Delirio
750 m
Cochet Grillee
2,2 Km
Pizza e Sfizi
2,7 Km
Ambasciata Orsarese
2,7 Km
Mostra tutto

Caratteristiche

Rif.:
60835249
Piano:
2 di 3 con ascensore (Piano medio)
Balconi:
2
Camere da letto:
3
Arredamento:
Assente
Condizionamento:
Autonomo
Mostra tutto
Prezzo Prezzo
€ 145.000
Rata mutuo Rata mutuo
€ 684 / mese
Spese annue Spese annue
€ 633
Proponi il tuo prezzoProponi il tuo prezzo

Classe Energetica

E
E
E
E
E
E
E
E
E
EP globale non rinnovabile:
85.22 kW h/m² anno
EP globale rinnovabile:
77.50 kW h/m² anno
Anno di costruzione:
2015
Riscaldamento:
Centralizzato
Tipo impianto:
A radiatori
Tipo alimentazione:
Metano

Ti interessa visionare l'immobile?

Fissa un appuntamento  Fissa un appuntamento

Richiedi informazioni

Clicca su Leggi per aprire l'informativa
* Questi campi sono obbligatori

Calcola il tuo mutuo

Semplice e senza impegno
Anticipo

( % )
Mutuo

( % )

pochi semplici passi

inserisci i tuoi dati
Questionario completato
Grazie per aver richiesto un appuntamento senza impegno con un nostro Consulente del Credito e Assicurativo.

Hai inserito correttamente tutti i dati necessari e a breve riceverai una e-mail con un link da convalidare per inviare i tuoi dati.
Affiliato
Macchia Gialla Sas
Via Padre Ardelio Della Bella, 9/11 71122 Foggia (FG)

Il nostro staff


  • Christian Foglio
    Collaboratore

  • Gina Gerardi
    Collaboratrice

  • Mariana Pizzuto
    Coordinatrice

  • Luca Stasi
    Affiliato
Via Padre Ardelio Della Bella, 9/11 71122 Foggia (FG)
Zona: Foggia-Macchia Gialla-Tribunale-Parco Dei Fiori
Mostra su mappa
Orari: Da Lunedì a Venerdì dalle ore 09.00 alle 13.00 e dalle 16.00 alle 20.30 - Sabato dalle ore 09.00 alle 13.00
Affiliato
Macchia Gialla Sas
Via Padre Ardelio Della Bella, 9/11 71122 Foggia (FG)

2026 Tecnocasa Franchising S.p.A. - P. IVA 08365160152 - Via Monte Bianco 60/A 20089 Rozzano (MI). Ogni agenzia ha un proprio titolare ed è autonoma. Privacy policy | Policy utilizzo | Cookie policy