Trilocale in vendita

Foggia, Via Domenico Antonio Patroni - Tribunale
€ 145.000
3 locali 3 locali
74 Mq 74 Mq
1 bagno 1 bagno

Trilocale in vendita

Foggia, Via Domenico Antonio Patroni - Tribunale

Descrizione annuncio

ZONA TRIBUNALE - VIA DOMENICO PATRONI

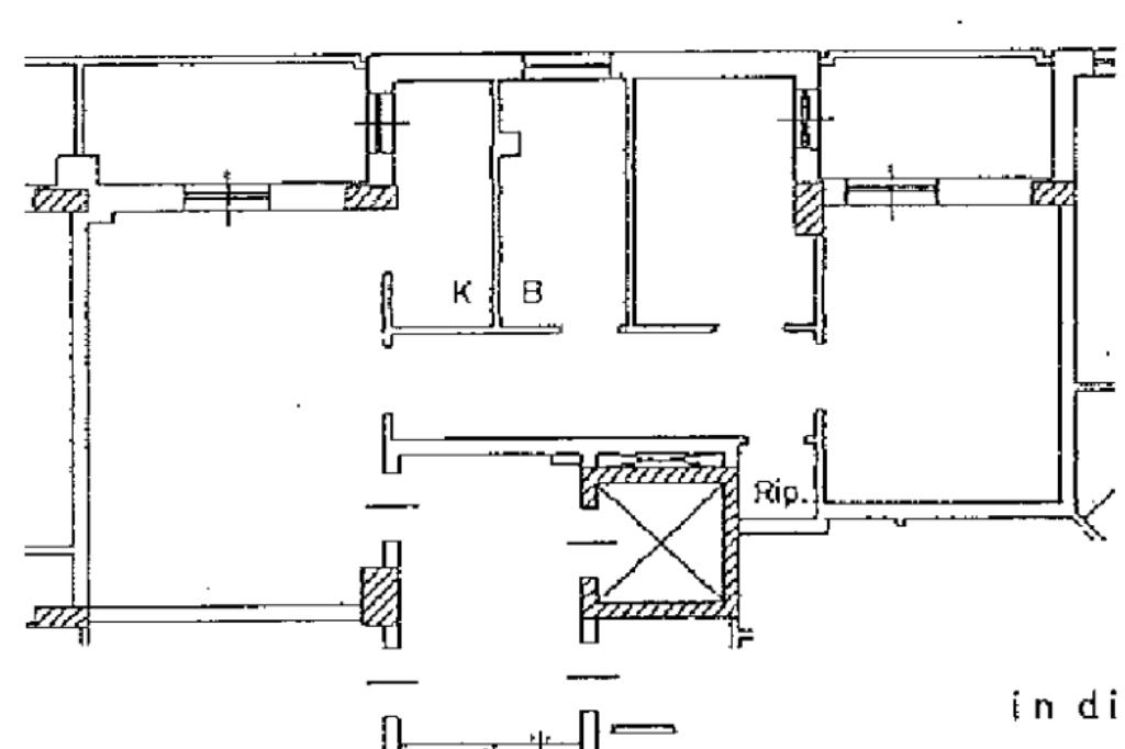
In zona ben servita ed in stabile signorile disponiamo di un appartamento di 3 VANI oltre accessori e box auto.

L'immobile si presenta in buono stato con pavimentazione unica in gres, infissi in legno vetrocamera e zanzariere, porte interne in legno e d'ingresso blindata;

Inoltre l'appartamento è così disposto: soggiorno a vista con angolo cottura, camera da letto, cameretta , bagno e ripostiglio. Impianto idrico ed elettrico in ottimo stato.

Completa la soluzione, box di 16 mq con serranda elettrica.

La posizione molto centrale e il piano alto caratterizzano questo immobile.

Seguici su Facebook cliccando 'mi piace' sulla pagina Gruppo Tecnocasa (Foggia Macchia Gialla) o contattaci attraverso il nostro canale Whatsapp al numero 0881.070700 per avere maggiori informazioni sui nostri immobili.
Scarica gratuitamente anche l'App Tecnocasa sul tuo smartphone per essere sempre aggiornato sulle nostre proposte di vendita e locazione.

Inoltre, tramite la nostra agenzia hai la possibilità, previo appuntamento, di incontrare un Collaboratore di Kiron Partner SpA, la società di mediazione creditizia del Gruppo Tecnocasa, per effettuare una consulenza reddituale e poter richiedere il mutuo adatto alle tue esigenze.

LA CONSULENZA E' GRATUITA.

Mostra tutto

Nelle vicinanze

Trasporto pubblico Trasporto pubblico
stazione di Foggia
stazione di Foggia
2,0 Km
Trasporto pubblico
420 m
Viale D. Vittorio
Viale D. Vittorio
1,3 Km
Ricariche auto elettriche Ricariche auto elettriche
Enel PAN Foggia Viale degli Aviatori
170 m
Concessionario Nissan Renauto S.P.A.
2,6 Km
Daunia Soccorso Foggia | EnelX
2,8 Km
Scuole Scuole
Scuole
560 m
Nicola Parisi
770 m
Istituto Comprensivo Parisi - De Sanctis
900 m
Scuola Edmondo De Amicis
1,2 Km
Scuola Elementare "San Pio X"
1,3 Km
Farmacia Farmacia
Farmacia Santa Rita
430 m
Farmacia San Marco
480 m
Farmacia San Michele
670 m
Farmacia dell'Immacolata
820 m
Farmacia
1,1 Km
Ospedali Ospedali
Clinica Colonnello D'Avanzo
440 m
Casa di Cura "Maria Grazia Barone"
660 m
Clinica S. Francesco
700 m
ASL FG
1,9 Km
Ospedali Riuniti di Foggia
1,9 Km
Supermercati Supermercati
Ipercoop
430 m
Sigma
500 m
MD Discount
660 m
Alter Discount
710 m
La Prima Srl
830 m
Negozi Negozi
Negozi
1,2 Km
Uli-Style
1,3 Km
I Figli di Papà
1,3 Km
Halfon
1,4 Km
Motivi
1,4 Km
Bar Bar
Bar
400 m
Caffetteria cornetteria Simonetti
400 m
Bar Fiocco di neve
590 m
Cafes de Paris
590 m
Bar Pasticceria Catalano
1,2 Km
Ristoranti Ristoranti
Cochet Grillee
660 m
Mangia come parli
880 m
Ambasciata Orsarese
940 m
El Matador
970 m
Pizza e Sfizi
1,2 Km
Mostra tutto

Caratteristiche

Rif.:
60716640
Piano:
4 di 6 con ascensore (ultimo Piano)
Box:
1
Balconi:
2
Camere da letto:
2
Arredamento:
Assente
Mostra tutto
Prezzo Prezzo
€ 145.000
Rata mutuo Rata mutuo
€ 684 / mese
Spese annue Spese annue
€ 456
Proponi il tuo prezzoProponi il tuo prezzo

Classe Energetica

F
F
F
F
F
F
F
F
F
EP globale non rinnovabile:
112.51 kW h/m² anno
EP globale rinnovabile:
1.13 kW h/m² anno
EP invernale del fabbricato:
EP estiva del fabbricato:
Anno di costruzione:
2003
Riscaldamento:
Autonomo
Tipo impianto:
A radiatori
Tipo alimentazione:
Metano

Ti interessa visionare l'immobile?

Fissa un appuntamento  Fissa un appuntamento

Richiedi informazioni

Clicca su Leggi per aprire l'informativa
* Questi campi sono obbligatori

Calcola il tuo mutuo

Semplice e senza impegno
Anticipo

( % )
Mutuo

( % )

pochi semplici passi

inserisci i tuoi dati
Questionario completato
Grazie per aver richiesto un appuntamento senza impegno con un nostro Consulente del Credito e Assicurativo.

Hai inserito correttamente tutti i dati necessari e a breve riceverai una e-mail con un link da convalidare per inviare i tuoi dati.
Affiliato
Macchia Gialla Sas
Via Padre Ardelio Della Bella, 9/11 71122 Foggia (FG)

Il nostro staff


  • Christian Foglio
    Collaboratore

  • Gina Gerardi
    Collaboratrice

  • Mariana Pizzuto
    Coordinatrice

  • Luca Stasi
    Affiliato
Via Padre Ardelio Della Bella, 9/11 71122 Foggia (FG)
Zona: Foggia-Macchia Gialla-Tribunale-Parco Dei Fiori
Mostra su mappa
Orari: Da Lunedì a Venerdì dalle ore 09.00 alle 13.00 e dalle 16.00 alle 20.30 - Sabato dalle ore 09.00 alle 13.00
Affiliato
Macchia Gialla Sas
Via Padre Ardelio Della Bella, 9/11 71122 Foggia (FG)

2025 Tecnocasa Franchising S.p.A. - P. IVA 08365160152 - Via Monte Bianco 60/A 20089 Rozzano (MI). Ogni agenzia ha un proprio titolare ed è autonoma. Privacy policy | Policy utilizzo | Cookie policy