Trilocale in vendita

Foggia, Viale degli artigiani - Villaggio Artigiani
€ 110.000
3 locali 3 locali
100 Mq 100 Mq
1 bagno 1 bagno

Trilocale in vendita

Foggia, Viale degli artigiani - Villaggio Artigiani

Descrizione annuncio

ZONA VILLAGGIO ARTIGIANI

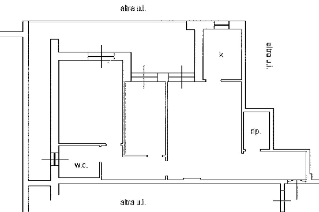
In zona ben servita ed in contesto residenziale, disponiamo di appartamento di 100mq composto da 3 VANI oltre accessori. Soggiorno a vista, cucinotto, camera da letto, cameretta, bagno e ripostiglio;

L'immobile si presenta in ottimo stato con pavimentazione unica in gres porcellanato, porte interne in legno, alcune di esse a scrigno, porta d'ingresso blindata, infissi in pvc vetrocamera, inferriate e zanzariere.

La presenza di un ampio balcone ed un LABORATORIO di 34mq al piano terra, rendono completo e funzionale questo appartamento.

Si specifica, la possibilità di acquisto box ad € 20.000,00 di circa 18 mq.

Seguici su Facebook cliccando 'mi piace' sulla pagina Gruppo Tecnocasa (Foggia Macchia Gialla) o contattaci attraverso il nostro canale Whatsapp al numero 0881.070700 per avere maggiori informazioni sui nostri immobili.
Scarica gratuitamente anche l'App Tecnocasa sul tuo smartphone per essere sempre aggiornato sulle nostre proposte di vendita e locazione.

Inoltre, tramite la nostra agenzia hai la possibilità, previo appuntamento, di incontrare un Collaboratore di Kiron Partner SpA, la società di mediazione creditizia del Gruppo Tecnocasa, per effettuare una consulenza reddituale e poter richiedere il mutuo adatto alle tue esigenze.

LA CONSULENZA E' GRATUITA.

Mostra tutto

Nelle vicinanze

Trasporto pubblico Trasporto pubblico
stazione di Foggia
stazione di Foggia
370 m
Via San Giuliano
Via San Giuliano
250 m
V.le Artigiani (Feudo d'Ascoli)
V.le Artigiani (Feudo d'Ascoli)
290 m
Ricariche auto elettriche Ricariche auto elettriche
Concessionario Nissan Renauto S.P.A.
540 m
Daunia Soccorso Foggia | EnelX
550 m
Enel PAN Foggia Viale degli Aviatori
2,4 Km
Scuole Scuole
Scuola Media Statale "Dante Alighieri"
730 m
Scuola Media Statale Dante Alighieri
740 m
Lorenzo Scillitani
760 m
Università degli Studi di Foggia
940 m
Scuola Media Statale "Dante Alighieri" - Sede Staccata
1,0 Km
Farmacia Farmacia
Farmacia della Stazione
660 m
Farmacia San Giovanni
920 m
San Ciro
960 m
Farmacia de Mauro
990 m
Telesforo
1,0 Km
Ospedali Ospedali
Dipartimento Dipendenze Patologiche
1,3 Km
ASL FG
1,6 Km
Casa di Cura "Maria Grazia Barone"
1,6 Km
Clinica Colonnello D'Avanzo
1,9 Km
Casa della Divina Provvidenza Ospedale "Don Uva"
2,3 Km
Supermercati Supermercati
La Prima
530 m
Eurospin
690 m
Convì
690 m
Martucci Uno
930 m
Alter Discount
990 m
Negozi Negozi
Sofia Abbigliamento
740 m
MaleFemale
750 m
The Other Side Man
780 m
Halfon
900 m
L'Antica Bottega
920 m
Bar Bar
Gran Caffè Moderno
730 m
Gelateria Gabrielino
880 m
Wals Bar
880 m
La ghiacciaia
960 m
Caffetteria napoletana
960 m
Ristoranti Ristoranti
Bistrò
760 m
Sorsi e Morsi
760 m
Kaminetto
980 m
Barbecue
1,0 Km
I Cavalieri
1,0 Km
Mostra tutto

Caratteristiche

Rif.:
60546789
Piano:
1 di 2 con ascensore (Piano basso)
Box:
1
Balconi:
1
Camere da letto:
2
Arredamento:
Assente
Mostra tutto
Prezzo Prezzo
€ 110.000
Prezzo box Prezzo box
€ 20.000
Rata mutuo Rata mutuo
€ 519 / mese
Spese annue Spese annue
€ 450
Proponi il tuo prezzoProponi il tuo prezzo

Classe Energetica

E
E
E
E
E
E
E
E
E
EP globale non rinnovabile:
100.00 kW h/m² anno
EP globale rinnovabile:
95.00 kW h/m² anno
EP invernale del fabbricato:
EP estiva del fabbricato:
Anno di costruzione:
2010
Riscaldamento:
Autonomo
Tipo impianto:
A radiatori
Tipo alimentazione:
Metano

Ti interessa visionare l'immobile?

Fissa un appuntamento  Fissa un appuntamento

Richiedi informazioni

Clicca su Leggi per aprire l'informativa
* Questi campi sono obbligatori

Calcola il tuo mutuo

Semplice e senza impegno
Anticipo

( % )
Mutuo

( % )

pochi semplici passi

inserisci i tuoi dati
Questionario completato
Grazie per aver richiesto un appuntamento senza impegno con un nostro Consulente del Credito e Assicurativo.

Hai inserito correttamente tutti i dati necessari e a breve riceverai una e-mail con un link da convalidare per inviare i tuoi dati.
Affiliato
Macchia Gialla Sas
Via Padre Ardelio Della Bella, 9/11 71122 Foggia (FG)

Il nostro staff


  • Christian Foglio
    Collaboratore

  • Gina Gerardi
    Collaboratrice

  • Mariana Pizzuto
    Coordinatrice

  • Luca Stasi
    Affiliato
Via Padre Ardelio Della Bella, 9/11 71122 Foggia (FG)
Zona: Foggia-Macchia Gialla-Tribunale-Parco Dei Fiori
Mostra su mappa
Orari: Da Lunedì a Venerdì dalle ore 09.00 alle 13.00 e dalle 16.00 alle 20.30 - Sabato dalle ore 09.00 alle 13.00
Affiliato
Macchia Gialla Sas
Via Padre Ardelio Della Bella, 9/11 71122 Foggia (FG)

2026 Tecnocasa Franchising S.p.A. - P. IVA 08365160152 - Via Monte Bianco 60/A 20089 Rozzano (MI). Ogni agenzia ha un proprio titolare ed è autonoma. Privacy policy | Policy utilizzo | Cookie policy